Lagebeschreibung
Die Offizierssiedlung liegt im Norden Mannheims im Stadtteil Käfertal, unmittelbar am Käfertaler Wald und ist wahrhaftig eine grüne Oase inmitten der Metropolregion Rhein-Neckar.
60 Jahre alter Baumbestand und großzügige Grünflächen suchen in ganz Mannheim Ihresgleichen.
Bildungsangebote und Einkaufsangebote finden sich im Käfertaler Ortszentrum. Das Kurpfalz Center, sowie das Rhein-Neckar-Zentrum sind jeweils 5 Autominuten entfernt.
Die Verkehrsachsen A6, A659/B38 sind in wenigen Minuten erreichbar.
ÖPNV: Straßenbahnen: Linie 5, ca. 1 km Entfernung, Bus am Käfertaler Friedhof.
Erhalts des einmaligen Charakters
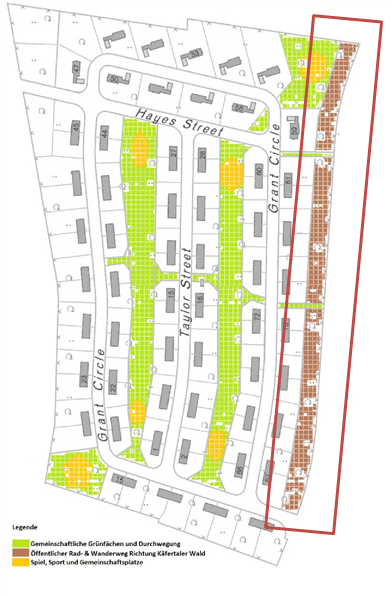
Um die Siedlung mit Ihrem jetzigen, offenen Charakter und Bewuchs vollständig zu erhalten, werden große gemeinschaftliche Spiel-, Sport-, andere Freizeit- und Grünflächen ausgewiesen und die Durchwegungen der Siedlung wieder geöffnet bzw. angelegt (siehe auch Grundstücksplan).
Hierdurch wird das offene, nachbarschaftliche Ambiente – die amerikanische Seele der Siedlung wiederhergestellt.
Die Kosten für notwendigen Baumpflege-, Mäh- und Unterhaltungsarbeiten der öffentlichen Gemeinschaftsflächen werden von den zukünftigen Hauseigentümern über eine Umlage von ca. 30 € im Monat finanziert.
Naturpfad
Entlang der Ostseite der Siedlung wird ein öffentlicher Fuß- und Rad (ohne Teerdecke) sowie ein Pferdeweg durch den bestehenden Baumbestand geschaffen.
Hierdurch wird ein Teil des vorhandenen Grüns der Offizierssiedlung zu einem naturnahen Zugang aus dem Käfertaler Zentrum Richtung Käfertaler Wald - für alle Mannheimer.

Wenn Sie sich die Siedlung aus der Vogelperspektive anschauen möchten, empfehlen wir Ihnen Google Maps oder den amtlichen Stadtplan der Stadt Mannheim (hier bitte "Taylor Street" in die Adresssuche eingeben.)